Ethical Logistics . org
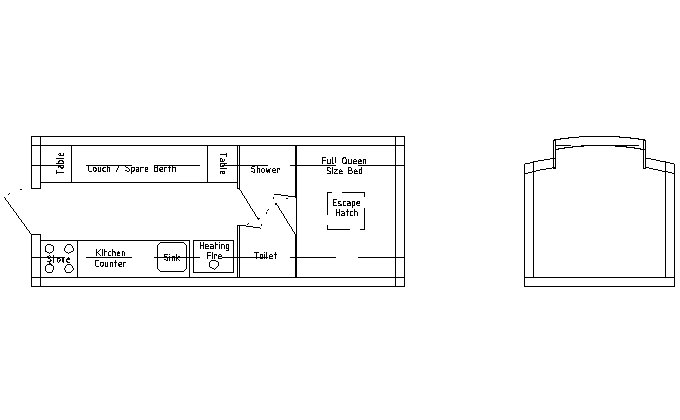
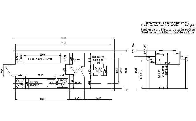
Living Wagon
Some initial concepts



Exterior walls: 6mm ply
Beams constructed with 6mm ply & solid wood to built up into I beams.
Interior linings: 3mm ply
6" sheep wool insulation.
Living Wagon Materials List:
1/4 plywood $30 per sheet X 24 = exterior roof and walls Approx $720
1/8 plywood $12 per sheet X 24 = interior roof and walls approx $288
3/4 plywood $55 per sheet X 14 = double floor approx $770
1/2 plywood $36 per sheet X 8 = bulkheads and toilet/shower doors approx $288
Misc Plywood Approx $1000
Total plywood including bed, cabinetry, etc Approx $4,000
Dickinson Propane heater Approx $1,000
Two foot square domestic propane stove/oven
Portable chemical cassette toilet Approx $200
Sheep wool insulation Approx $2,600
Epoxy
Xynole polyester fabric
Cedar/Cypress framing timber
Whale Gusher foot pump Approx $150
Garden pressure sprayer (shower)
Propane tanks
Engel fridge Approx $2,000
Solar setup
Air conditioner? (solar powered, daytime running only)
Tandem axle single wheel fifth wheel trailer (25ft) Approx $10,000
Windows
Paint
Golden ratio: = approx 1 X .62 (length X width) or 1 / .62 (width / length)
Probable better alternative is 1 X .68
Study on weight saving holes in wood I beam construction ./web5138.pdf
Backlinks: Nomadic Homes
If you would like to get in touch, I can be reached at
